9 of 株式会社OCT ASSOCIATES

Top.jpgNew.jpgBlog.jpgspecialty.jpgWorks.jpgCompany.jpgProfile.jpgContact.jpgLink.jpgProjectTeam.jpg

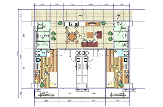
みろくの里国際寮Ⅰ